slash
architects
work
studio
news
slash
health
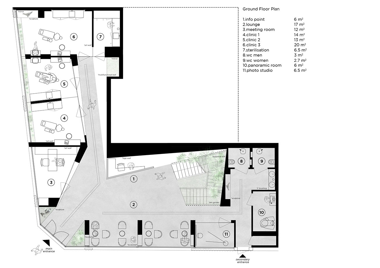
Dent Corner Clinic
program:
Dental Clinic, 310 m²
location:
Istanbul, Turkey, 2020
status:
under construction
contractor:
photography: